Kozza KB5100 – kompletný francúzský balkón hliníkový H1100 mm, sklo 10–11,52 mm, matná anodizácia
produkt nedostupný
pridať do zoznamu želaní
Popis
Kozza KB5100 – kompletný francúzsky balkón hliníkový H1100 mm, sklo 10–11,52 mm, matná anodizácia

Francúzsky balkón Kozza KB5100 je kompletná súprava hliníkových profilov v plochom systéme, určená na montáž priamo na okenný rám. Vďaka minimalistickej konštrukcii a matovému povrchu (anodizácia) umožňuje montážnym firmám ponúknuť klientom moderné, estetické zabezpečenie otvoreného okna — bez potreby zásahu do fasády budovy.
Systém podporuje sklá s hrúbkou od 10 do 11,52 mm a maximálnymi rozmermi 1000 × 1100 mm (šír. × výš.). Veľká presklená plocha vpúšťa do interiéru maximum prirodzeného svetla, a testami potvrdená odolnosť voči vetru a zaťaženiu zaručuje dlhoročné, bezpečné používanie.
Rýchla montáž bez komplikácií

Profily sa dodávajú s presne navŕtanými otvormi, čo umožňuje výrazne skrátiť čas inštalácie. Hotové prvky eliminujú potrebu dodatočného vŕtania a obrábania na stavbe — postačujú štandardné montážne nástroje.
Obsah súpravy:
- 2 hliníkové profily s navŕtanými otvormi
- 2 maskovnice (krycie lišty)
- 1 tesnenie na sklo
- 2 koncové zátky
- 2 dištančné podložky
Návod na montáž — krok za krokom
Obrázky nižšie predstavujú jednotlivé etapy skladania súpravy: od rozloženia komponentov, cez zasunutie tesnenia do profilu (zelené značky ukazujú body uchytenia), až po hotovú, zloženú súpravu.



Technická špecifikácia
- Výrobca: Kozza
- Séria: KB5100
- Systém: plochý
- Uchytenie: na okno
- Materiál: anodizované hliník
- Povrchová úprava: matná anodizácia
- Hrúbka podporovaného skla: 10–11,52 mm
- Maximálna šírka skla: 1000 mm
- Maximálna výška skla (H): 1100 mm
- Výška profilu: H + 15 mm (cca 1115 mm)
- Presah profilu nad sklo (hore): 6,5 mm
- Presah profilu pod sklo (dole): 8,5 mm
- Hmotnosť súpravy: 4,8 kg
- EAN: 5903313207454
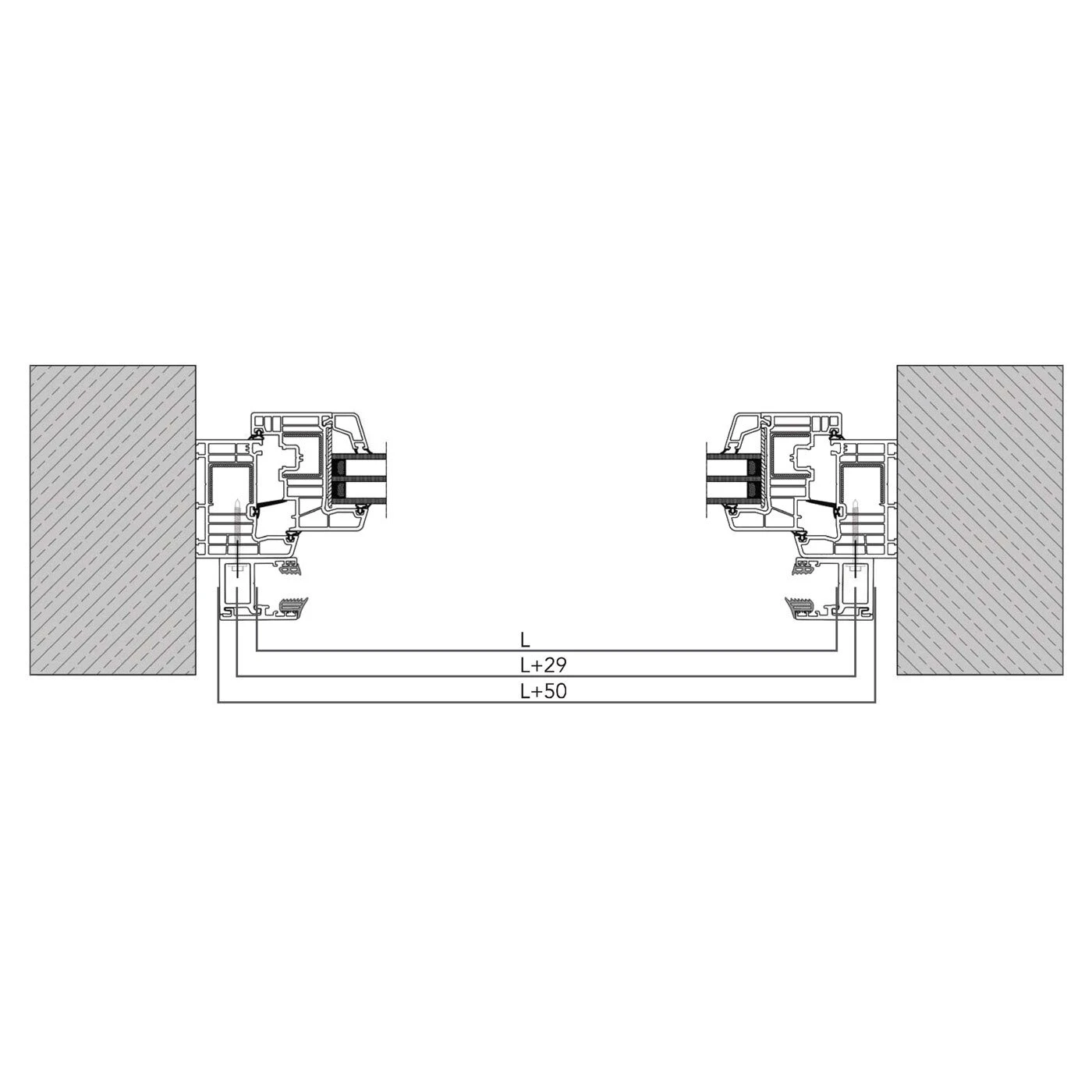
Montážne rozmery

Na výkrese nižšie sú viditeľné tri kľúčové rozmery závislé od šírky skla (L):
- L — šírka skla (vzdialenosť medzi vnútornými hranami profilov)
- L + 29 mm — rozstup osí montážnych skrutiek
- L + 50 mm — celková vonkajšia šírka usporiadania profilov
Rozmiestnenie bodov uchytenia (pre sklo H = 1100 mm)
Nasledujúca tabuľka predstavuje vzdialenosti medzi jednotlivými bodmi uchytenia profilu (zdola, segment A, nahor). Všetky hodnoty v mm:
| Výška skla (H) | 1100 mm |
|---|---|
| A | 50 |
| B | 166 |
| C | 166 |
| D | 167 |
| E | 167 |
| F | 167 |
| G | 167 |
Montážny rez — detail uchytenia na okno

Výkres prierezu ukazuje detail spojenia hliníkového profilu s okenným rámom a zárubňou. Profil sa uchytáva priamo na okno — bez zásahu do konštrukcie steny. Systém zabezpečuje estetické dokončenie z vonkajšej strany vďaka maskovniciam a tesneniu na sklo.
Použitie
Francúzsky balkón KB5100 sa ideálne hodí:
- V bytových budovách na vyšších poschodiach — zabezpečuje otváravé balkónové okná
- V moderných rodinných domoch — ako minimalistický prvok fasády
- Pri modernizácii a renovácii starších budov — montáž nezasahuje do konštrukcie steny
- Všade tam, kde sa počíta s maximálnym osvetlením interiéru bez tradičného balkóna
Konečný efekt — realizácie


Matné, anodizované hliník harmonicky ladí so svetlými aj tmavými okennými rámami a dodáva fasáde elegantný, moderný charakter.
Technické údaje
| Materiál | Hliník |
Bezpečnosť
Všetky recenzie (pozitívne aj negatívne) sa zobrazujú podľa obmedzenia počtu platforiem. Overujeme, či pochádzajú od zákazníkov, ktorí si produkt zakúpili. Viac informácií nájdete na našej stránke zásady komentovania.