Kozza KB5100 – francúzsky balkón hliníkový H1100 mm, sklo 16–17,52 mm, matná anoda
produkt nedostupný
pridať do zoznamu želaní
Popis
Kozza KB5100 – francúzsky balkón hliníkový H1100 mm, sklo 16–17,52 mm, matná anoda

Kozza KB5100 je kompletná súprava francúzskeho balkóna určená na montáž priamo na rám okna. Plochý systém vyrobený z anodizovaného hliníka s povrchovou úpravou matná anoda spája minimalistický dizajn s vysokou odolnosťou potvrdenou testami. Vďaka veľkej ploche skla s hrúbkou 16–17,52 mm zabezpečuje maximálny prístup denného svetla a zároveň plní úlohu estetickej a bezpečnej ochrannej bariéry.
Ideálne riešenie pre inštalačné firmy realizujúce modernizačné projekty, viacpodlažné budovy a rodinné domy — všade tam, kde je klasický balkón nemožný alebo neekonomický. Hotové montážne otvory a kompletné vybavenie súpravy umožňujú dokončiť montáž rýchlo, bez dodatočných objednávok a špeciálnych nástrojov.
Technická špecifikácia
- Výrobca: Kozza
- Séria: KB5100
- Systém: plochý
- Upevnenie: na okno
- Materiál: anodizovaný hliník
- Povrchová úprava: matná anoda
- Hrúbka skla: 16–17,52 mm
- Maximálna šírka skla: 1600 mm
- Maximálna výška skla (H): 1100 mm
- Výška profilu: H + 15 mm (teda 1115 mm)
- Hmotnosť súpravy: 4,8 kg
- EAN: 5903313207461
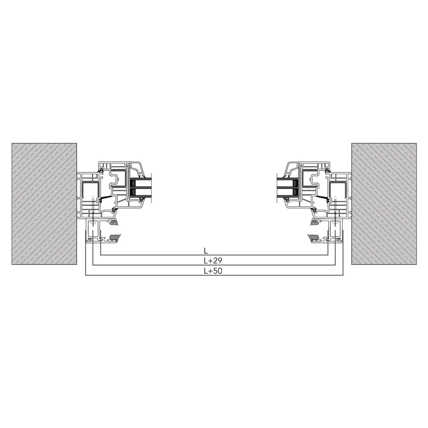
Montážne rozmery
- Svetlosť medzi profilmi (šírka skla): L
- Rozostup osí upevnení: L + 29 mm
- Celková šírka vonkajšia: L + 50 mm
- Horný odstup (profil–sklo): 6,5 mm
- Dolný odstup (profil–sklo): 8,5 mm
Obsah súpravy

Súprava obsahuje všetko potrebné na kompletný montáž — bez nutnosti dokúpenia dodatočných prvkov:
- Dva hliníkové profily s výrobne pripraveným montážnymi otvormi
- Kryty (ochranné lišty profilov)
- Tesnenie na sklo (gumové, špecializované)
- Koncové záslepky
Presne rozmiestnené otvory v profiloch eliminujú potrebu vŕtania na stavbe, čo skracuje čas inštalácie a minimalizuje riziko chýb. Pre inštalačné tímy to znamená úsporu času a vyšší štandard dokončenia.
Rozmiestnenie montážnych otvorov (H = 1100 mm)
| Zóna | Vzdialenosť (mm) |
|---|---|
| A | 50 |
| B | 166 |
| C | 166 |
| D | 167 |
| E | 167 |
| F | 167 |
| G | 167 |
Technické výkresy — montážny rez a rozmery



Použitie a montáž
Francúzsky balkón Kozza KB5100 sa osvedčuje všade tam, kde obmedzený priestor alebo konštrukčné podmienky vylučujú montáž tradičného balkóna — na vyšších poschodiach viacpodlažných budov, v moderných rodinných domoch a pri renovácii existujúcich objektov. Montáž nevyžaduje významnú ingerenciu do konštrukcie budovy, čo z neho robí bezproblémové riešenie tak v novej výstavbe, ako aj počas modernizácie.
Realizácie — vzhľad po montáži


Konštrukcia potvrdená testami odolnosti a odolnosti voči zaťaženiu vetrom zaručuje dlhodobý komfort a bezpečnosť používania. Minimalistický hliníkový profil s povrchovou úpravou matná anoda je odolný proti korózii a atmosférickým podmienkam, zachováva si estetický vzhľad počas rokov prevádzky.
Technické údaje
| Materiál | Hliník |
Bezpečnosť
Všetky recenzie (pozitívne aj negatívne) sa zobrazujú podľa obmedzenia počtu platforiem. Overujeme, či pochádzajú od zákazníkov, ktorí si produkt zakúpili. Viac informácií nájdete na našej stránke zásady komentovania.